找回密码
 立即注册

手机号码,快捷登录

手机号码,快捷登录

亿荣金属
查看: 6|回复: 0

带孔件感应淬火大家都怎样防护?

[复制链接]

签到天数: 12 天

[LV.3]偶尔看看II

158

主题

39

回帖

197

积分

初级锻造工

积分
197
发表于 10 小时前 来自手机 | 显示全部楼层 |阅读模式

马上注册,结交更多同行好友!

您需要 登录 才可以下载或查看,没有账号?立即注册

×
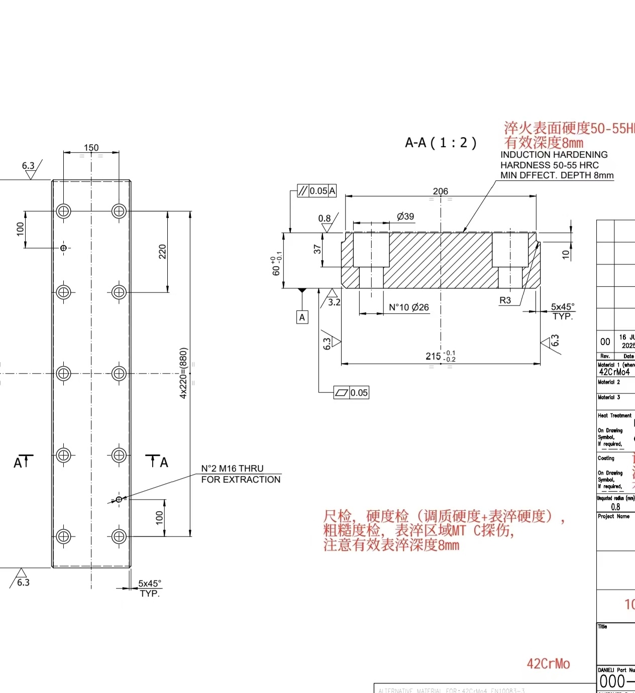
麻烦问一下,带孔件感应淬火大家都怎样防护?如下图:
mmexport1777252676058_edit_99649538730735.jpg
您需要登录后才可以回帖 登录 | 立即注册

本版积分规则


快速回复 返回顶部 返回列表